
By
アットオフィス

By
アットオフィス

By
オフィスナビ

By
オフィスナビ

By
オフィスナビ

By
アットオフィス

By
オフィスナビ

By
アットオフィス

By
アットオフィス

By
オフィスナビ

By
建物記録

By
GINZA OFFICEMAN 銀座オフィスマン

By
GINZA OFFICEMAN 銀座オフィスマン

By
NIHONBASHI OFFICEMAN 日本橋オフィスマン

By
オフィスナビ

By
NIHONBASHI OFFICEMAN 日本橋オフィスマン

By
オフィスナビ

By
賃貸オフィスのオフィスター

By
オフィスナビ

By
オフィスナビ
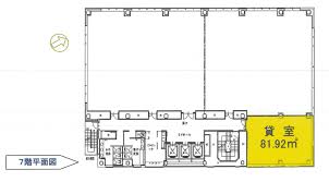
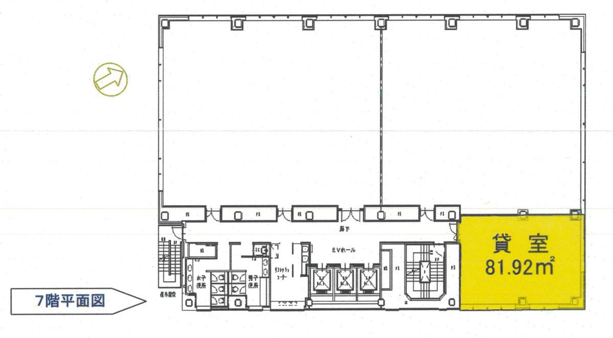
京橋 td京橋 ビル京橋 テナント京橋 京橋TDビル(中央区京橋)のビル情報【オフィスナビ®】京橋 京橋TDビル(中央区京橋)のビル情報【オフィスナビ®】京橋 日本橋Dスクエア京橋 |京橋 日本橋1丁目京橋 |京橋 日本橋のオフィス・貸事務所なら日本橋オフィスマン京橋 ◇江間忠さくらビル(中央区日本橋)のビル情報【オフィスナビ®】京橋 昭和ビル別館(中央区京橋)のビル情報【オフィスナビ®】京橋 京橋 京橋 京橋 京橋 京橋